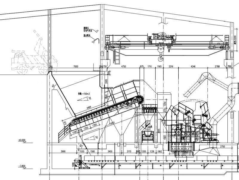
圖解重型板式給料機和泥石分離機的工藝布置。
圖解重型板式給料機和泥石分離機的工藝布置。
重型板式給料機做為砂石骨料生產線的給料輸送單元,其主要擔負把汽車來料或礦卡來料均勻輸送給下一級破碎設備工作,對于含泥量大的原料加泥石分離機可以有效提高破碎率,減少或避免破碎機“糊腔”現象發生。關鍵詞:重型板式給料機、泥石分離機、滾軸篩、波輥給料機

- 上一篇:沒有了;
- 下一篇:喜報:中國黃金B2000重型板式給料機鏈板順利交付
圖解重型板式給料機和泥石分離機的工藝布置。
重型板式給料機做為砂石骨料生產線的給料輸送單元,其主要擔負把汽車來料或礦卡來料均勻輸送給下一級破碎設備工作,對于含泥量大的原料加泥石分離機可以有效提高破碎率,減少或避免破碎機“糊腔”現象發生。關鍵詞:重型板式給料機、泥石分離機、滾軸篩、波輥給料機
